Offrez-vous une vue imprenable sur le lac Léman !
Situé au 3 ème étage sur 4 avec ascenseur d'une résidence calme et bien entretenue datant de 2006, ce spacieux T2 de 50 m2 vous séduira par sa luminosité et son cadre paisible.
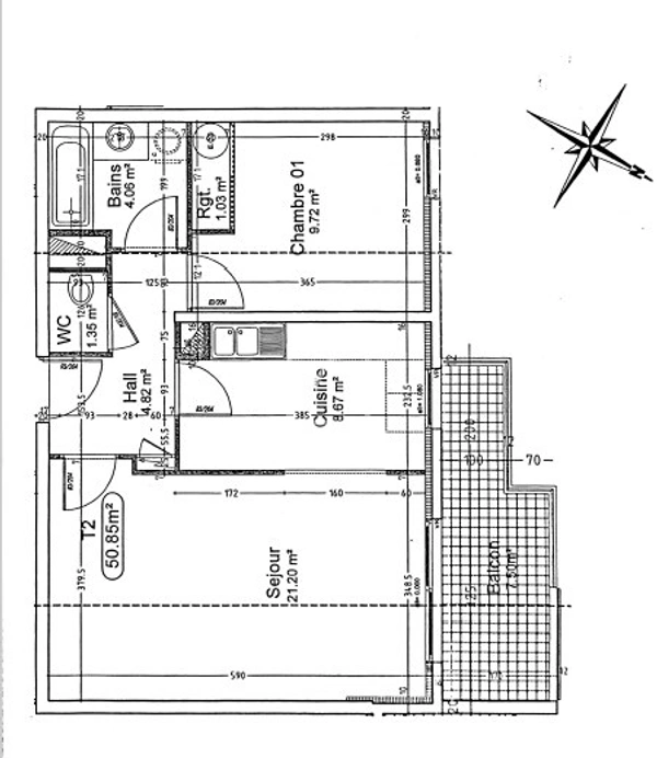
L'entrée dessert un séjour lumineux avec espace salle à manger et cuisine ouverte, le tout donnant sur terrasse orientée face au lac. La chambre est équipée d'un placard intégré. Une salle de bains et des WC séparés viennent compléter l'agencement intérieur.
En complément, l'appartement dispose d'un garage privatif fermé, d'une cave pratique pour le rangement, ainsi que d'un stationnement collectif.
Résidence au calme à proximité immédiate des arrêts de bus et du parking relais (P+R) du stade, idéal pour les frontaliers
Nichée entre le lac Léman et les montagnes du Chablais, Évian-les-Bains séduit par son charme authentique, son dynamisme et sa qualité de vie exceptionnelle. Réputée dans le monde entier pour son eau minérale, cette élégante ville thermale allie nature, bien-être et culture dans un environnement préservé.
Vous y trouverez toutes les commodités nécessaires au quotidien : commerces, écoles, transports, infrastructures sportives et culturelles. L'embarcadère permet de rejoindre Lausanne en 35 minutes en bateau, offrant ainsi une vraie alternative transfrontalière pour les actifs.
La ville est également connue pour son cadre naturel d'exception : promenades au bord du lac, randonnées en montagne, golf, stations de ski à proximité... Un véritable paradis pour les amateurs de plein air !
Investir à Évian, c'est faire le choix d'un lieu de vie paisible, entre ville et nature, avec une vue à couper le souffle et une qualité de vie rare.
IMOCONSEIL - Gilles DAMEVIN / 06 84 96 77 19 / g.damevin@imoconseil.com Retrouvez mes biens en vente actuellement sur :https://www.imoconseil.com/fr/conseillers/haute-savoie/gilles-damevin/416
Pour ne rien louper, abonnez-vous à ma page Facebook pro : https://fb.me/GillesDamevinImoconseil
Agent Commercial
| Type de bien | Appartement |
|---|---|
| Surface m2 | 50m2 |
| Nb de pièces | 2 |
| Nb de chambres | 1 |
| Nb de salle(s) de bain | 1 |
Actualités. Expertise. Conseils
