Sur les hauteurs d'Aubazine à 10 min de Malemort et à 15 minutes de Tulle , dans un lotissement recherché et paisible, venez découvrir cette belle maison familiale sur sous-sol complet, offrant un cadre de vie privilégié entre nature, confort et luminosité.
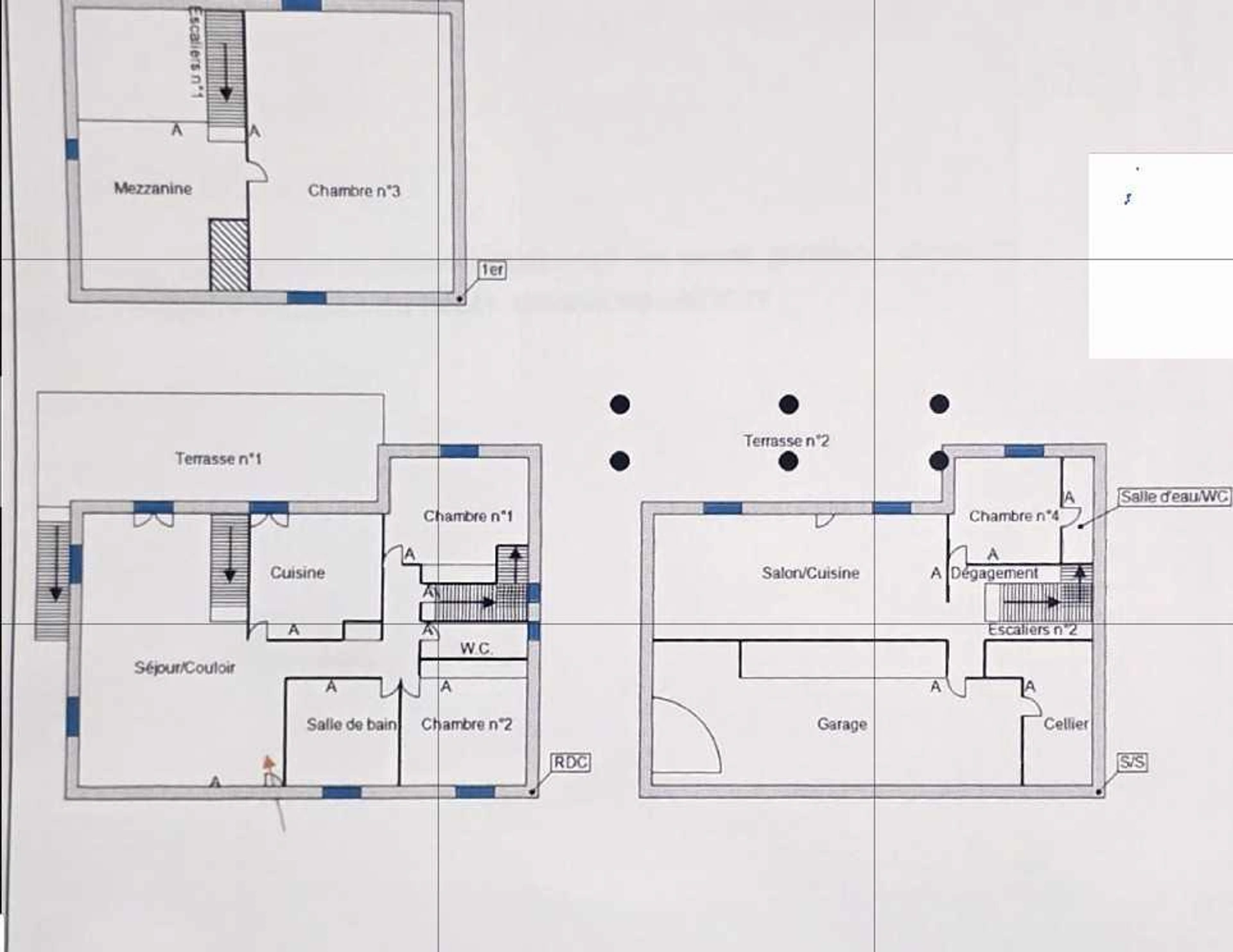
Cette maison chaleureuse et bien isolée, bénéficiant d'isolation optimisée. Le classement E s'explique principalement par le grand volume de vie avec mezzanine, offrant une belle hauteur sous plafond et une sensation d'espace dans la partie salon.
La maison s'ouvre sur une vaste pièce de vie traversante agrémentée d'une cheminée. Une porte fenêtre donne accès à une vue imprenable sur la campagne boisée sans vis-à-vis.
La cuisine indépendante, entièrement équipée, bénéficie elle aussi d'un accés direct à la terrasse, idéale pour les repas en extérieur. Deux grandes chambres, une salle de bain avec douche et un wc séparé.
A l'étage, un espace mezzanine dessert une grande chambre avec dressing offrant intimité et volume.
Un sous sol à fort potentiel:
Le sous-sol, totalement aménagé, se compose d'une grande pièce de vie lumineuse et d'une cuisine donnant sur une terrasse couverte, d'une chambre avec salle d'eau et wc. D'un cellier et d'un garage avec porte à galandage électrique.
Cet espace d'environ 40m2 de pièce à vivre peut-être utilisé comme logement indépendant pour accueillir un proche ou comme espace locatif pour un revenu complémentaire.
A découvrir rapidement car elle allie le charme, l'espace et le potentiel locatif dans un environnement privilégié.
Contactez Sabrina PRADEL SEMBELIE au 06.50.24.13.61 ou par mail : sabrina.sembelie@imoconseil.com pour une visite (possibilité de faire une visite virtuelle en amont).
Annonce rédigée par un agent commercial.
Agent Commercial
| Type de bien | Maison |
|---|---|
| Surface m2 | 149m2 |
| Nb de pièces | 6 |
| Nb de chambres | 4 |
| Nb de salle(s) de bain | 1 |
Actualités. Expertise. Conseils
