Murs commerciaux vendus loués ou libres
Situés en zone franche, profitez d'une belle opportunité d'investissement avec ces murs commerciaux, actuellement occupés par un locataire stable et fiable. Ce bien est vendu avec un bail récent, offrant une rentabilité locative immédiate et sécurisée mias peu également être libéré pour laisser place à votre activité.
Caractéristiques des murs commerciaux :
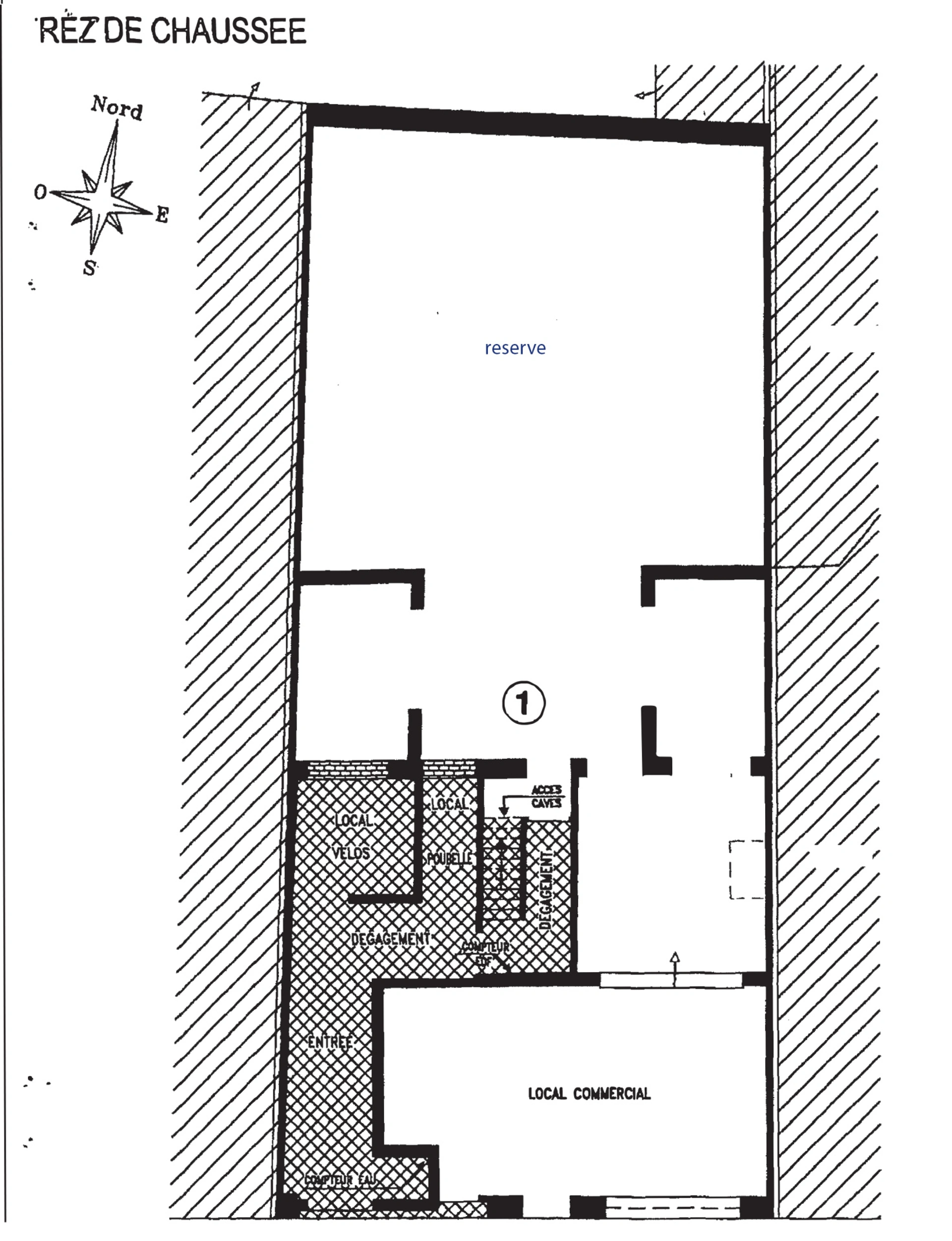
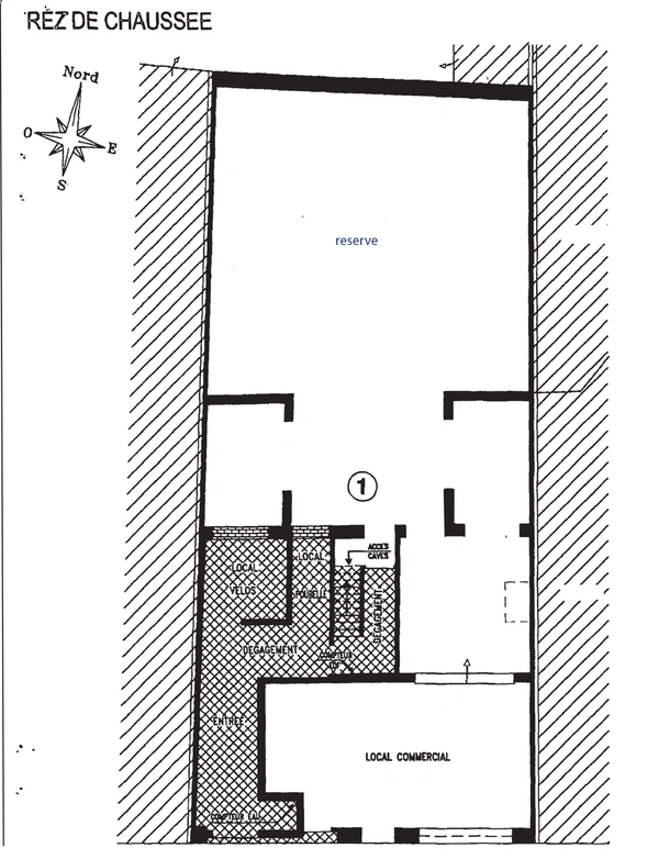
Surface totale : 148m2
Situés sur la Rue de la République, axe principal de Saint-Pol-Sur-Mer
Locataire en place, bail 3/6/9 signé fin 2023
Loyer mensuel : 12900EUR annuel
Pas de Taxe Foncière !
Belle visibilité, bon linéaire vitré, belle zone de stockage
Accès facile et proximité de toutes commodités
Adaptable à différents types d'activités commerciales
Avantages :
Situé en zone franche
Rentabilité immédiate grâce à un bail récent et un locataire fiable
Emplacement attractif, bien situé dans une zone à fort passage
Aucun travaux à prévoir
Investissement sécurisé dans un secteur dynamique
Agent Commercial
| Type de bien | Immobilier professionnel |
|---|---|
| Surface m2 | 148m2 |
Actualités. Expertise. Conseils
