184 000 €Honoraires à la charge du vendeur
Ref. 703_29855
Villa T3 neuve avec jardin Proche commerces
Salignac-Eyvigues (24590)
  • 82 m²
  • 3 pièces
  • 2 chambres
DPE_ passoire énergétique logement extrêmement performant logement extrêmement peu performant consommation (énergie primaire) 64 kWh/m²/an émissions* 2 kgCO2/m²/an
DPE_ * Dont émissions de gaz à effet de serre peu d'émissions de CO2 émissions de CO2 très importantes 2 kgCO2/m²/an
Olivier ECOEUR
Conseiller Imoconseil sur le secteur GOURDON
RSAC : 911294056
Appeler Écrire Voir tous mes biens
Consulter la fiche du conseiller
Notre conseiller vous présente le bien :

Situées dans la charmante commune de Salignac-Eyvigues, au sein de la nouvelle Résidence de Pech Fourcou, ces villas mitoyennes neuves combinent modernité, praticité et cadre de vie agréable. Pensées pour répondre aux besoins de toutes les générations, elles sont aussi adaptées à la mobilité réduite (PMR) pour offrir un habitat accessible à tous.
oAménagement intérieur :
oUne pièce de vie lumineuse avec entrée, cuisine ouverte équipée et séjour climatisé
oDeux chambres confortables climatisé
oUne salle d'eau moderne et accessible PMR
oGarage & Buanderie isolée
À l'extérieur :
oTerrasse de 16 m2 carrelée en travertin avec pergola bioclimatique
oVoiries aménagées, jardins privatifs et cadre paysager
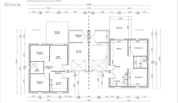
Descriptif des villas T3B :
oSuperficie totale : 81,73 m2
oSurface habitable : 55,92 m2
oGarage isolé : 18,35 m2
oBuanderie : 7,46 m2

Descriptif des villas T3A :
- Superficie habitable 54,55m2 + Garage isolé 18,46m2 / Buanderie 7,46m2 soit un total de 80,47m2.

Les atouts :
oFinitions soignées, Cuisine entièrement équipée
oMenuiseries en Alu & Double vitrage.
oChauffage aérothermique performant (Air/Air)
oArchitecture contemporaine mêlant bardage bois et enduits naturels
oAdaptation PMR pour une accessibilité universelle
oRaccordement au tout-à-l'égout
oPlace de Parking privatif
oGarage isolé et avec porte motorisée & buanderie carrelé
Des prix attractifs pour un investissement serein
À partir de 184 000 EUR HAI pour les Villas T3A , et 188 000 EUR HAI pour les VillasT3B, ces maisons représentent une opportunité unique pour vivre ou investir dans un lieu alliant confort, praticité et charme rural.
Déjà sous compromis de Vente: Villa T3A 1 & 2 et Villa T3B 17
Prenez dès à présent contact avec moi pour visiter et réserver la vôtre. Olivier Ecoeur ImoConseil 06 25 65 37 18
Un emplacement idéal:
Au coeur d'un lotissement verdoyant, ces villas bénéficient de la proximité immédiate des essentiels du quotidien :
oMaison de santé (médecins généralistes, infirmiers, dentiste, kinésithérapeutes, etc.)
oSupermarché, pharmacie, clinique Vétérinaire et boulangerie
oCommerces locaux, restaurants, bar-tabac et coiffeur
oÉcoles, mairie et services pratiques
Le village de Salignac-Eyvigues, à quelques minutes de Sarlat, offre un cadre de vie dynamique et paisible, parfait pour une résidence principale ou un investissement locatif.
(Frais de Notaire Réduit)
Agent Commercial

Quelques détails sur ce bien :
Type de bien Maison
Surface m2 82m2
Nb de pièces 3
Nb de chambres 2
Barème d'honoraires
Partager ce contenu
IMOCONSEIL FRANCE est une marque déposée.
Licences d’utilisation de marque à :

SAS DELIMMO, société au capital de 50000.00 euros. Siège social : Thomas Edison - 86360 CHASSENEUIL-DU-POITOU. N° de TVA intracommunautaire : FR33807521612. RCS POITIERS immatriculé(e) 807521612. Carte T : CPI 8601 2017 000 022 415. Date de délivrance : NC. Lieu de délivrance : CCI de la Vienne. Caisse de garantie financière : VERSPIEREN. . Montant de la garantie financière : sans

SARL DIAMOND au capital de 12000,00 euros. Siège social: FUTUROPOLIS 5 - 86360 CHASSENEUIL DU POITOU N° de TVA intracommunautaire : FR65493838205. RCS POITIERS immatriculé(e) 493838205 Carte T : CPI 8601 2024 000 000 013. Date de délivrance : 21/08/2024. Lieu de délivrance : CCI de la Vienne. Caisse de garantie financière : VERSPIEREN. Montant de la garantie financière : sans.

Conformément aux articles L611-1 et suivants et R612-1 et suivants du Code de la consommation, le consommateur est informé qu’il a la possibilité de saisir un ou notre médiateur de la consommation, à savoir MEDIMMOCONSO situé - email : contact@medimmoconso.fr - site : https://medimmoconso.fr/
CONTACT
Prenez contact avec le mandataire en charge de la vente de ce bien
Olivier ECOEUR
Conseiller Imoconseil sur le secteur GOURDON
Appeler Olivier Voir tous mes biens
Loading...
Les informations recueillies sur ce formulaire sont enregistrées dans un fichier informatisé par Imoconseil France pour gérer votre demande de contact. Elles sont conservées pour la durée nécessaire à la gestion de la relation client dans le respect des prescriptions légales applicables et sont destinées au responsable de la publication de ce site : Imoconseil France.
Conformément à la loi « informatique et libertés », vous pouvez exercer votre droit d'accès aux données vous concernant et les faire rectifier en contactant Imoconseil France internet@imoconseil.com ou en utilisant ce formulaire. Nous vous informons de l’existence de la liste d'opposition au démarchage téléphonique « Bloctel », sur laquelle vous pouvez vous inscrire ici : https://www.bloctel.gouv.fr/
Note 4.9/5
Des conseillers
immobiliers engagés.
Une expertise humaine.
Confier mon projet immobilier à un conseiller